Окрасочно-сушильная камера WDK-210
- По России: БЕСПЛАТНО до терминала отправления ТК (*далее по тарифам ТК) RUB
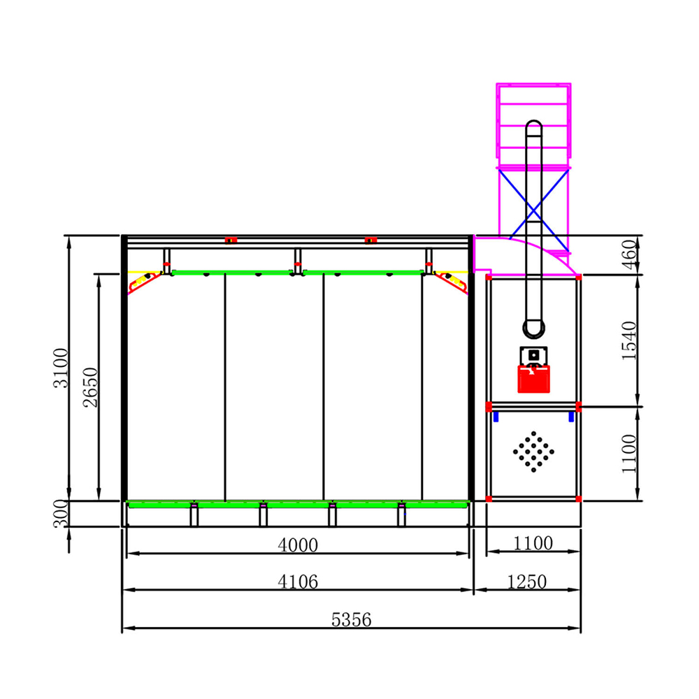
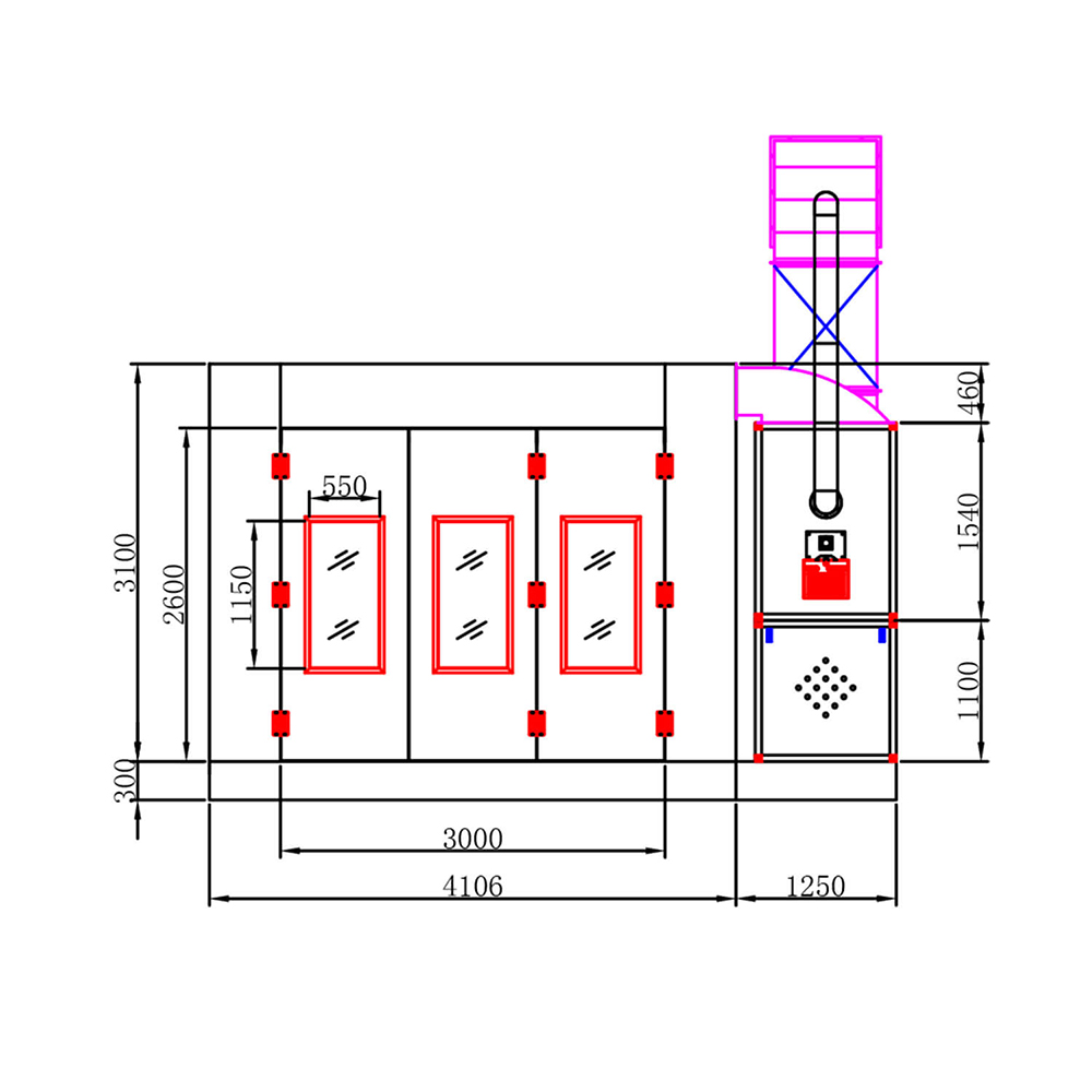
WDK-210 - окрасочно-сушильная камера с дизельной горелкой Riello и приточно-вытяжным тепловентиляционным агрегатом. Используется для сушки лакокрасочных покрытий и организации технологических процессов окраски. Боковые стены состоят из сэндвич-панелей (негорючий пенополистирол толщиной 53 мм) и являются теплоизоляционными. Визуальный контроль позволяют осуществить 3-х створчатые ворота со встроенными смотровыми окнами. Можно установить дополнительный комплект ворот с целью организации сквозного проезда. Установить приточно-вытяжную группу с любой стороны в процессе монтажа позволяет унифицированная конструкция.
Встроенная трехступенчатая система фильтрации воздуха с угольной очисткой дает возможность очистить воздух от пыли и примесей на 95%. Камера оснащена верхним наклонным освещением на 8 светильников и боковым вертикальным освещением на 8 светильников.
Широкий выбор различных оснований для быстрого и удобного монтажа в любых помещениях со сложными участками позволяет оптимизировать воздушные потоки для любых технологических процессов окраски, продувки и сушки. Пульт управления расположен на внешней стороне стены и может устанавливаться в любом удобном месте.
Особенности и преимущества:
- Универсальная конструкция расположения вентиляционной группы.
- Металлическое основание высотой 300мм и 100% усиленный решетчатый пол.
- Дополнительная угольная система фильтрации для снижения уровня выбросов сольвентов.
- Шиберные заслонки регулировки воздушного потока.
- Сплошная заездная аппарель.
- Двухрегистровый теплообменник c повышенным КПД и увеличенным сроком службы, из жаростойкой нержавеющей стали, устойчивой к высоким температурам и открытому огню.
- Рассекатели воздушного потока для 100% прохождения подаваемого воздуха через зону нагрева теплообменника для экономии топлива.
Германия -
родина бренда
Китай -
страна производитель


